Steep Back Garden in Penrith
Place
A back garden in Penrith, on the edge of the Lake District, steeply sloping in several directions, dropping more than 2.5 metres. The soil is a sandy loam that drains freely but is highly prone to erosion.
Before the rebuild, the garden was neglected and overgrown, with a small paved area at the top.
The upper part of the garden, with its open aspect, gets plenty of sun while the lower section is in shade for much of the day, and is overlooked by surrounding properties.
Brief
To create a garden that feels private, inviting and stylish. To provide a series of distinct zones supporting different activities, balancing active gardening with long-term ease of maintenance. Connection to the wider context was also important, visually linking the 1970s house to the red sandstone characteristic of the surrounding conservation area.
A planting approach that supports biodiversity and wildlife, including design features throughout the garden to support birds, pollinators and other fauna.
To retain existing sandstone paving, boulders and shrubs wherever possible, ensuring continuity with the original garden.
the design
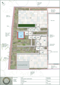
The steep gradient largely dictated the layout. The design embraces the slope through a series of terraces and paths based on a grid system of 900 mm squares, creating a series of separate spaces within a relatively small footprint. A meandering stepped path cuts into the terraces and reinforces the idea of a garden carved into the landscape.
Levels, materials and planting were carefully coordinated to manage surface water, slowing and absorbing run-off.
Limestone slabs form the paving and edging, and vertical surfaces are clad in slate, providing visual contrast. The terraces serve as informal seating and display surfaces for pots.
the developing garden
Construction work was commenced and completed in Spring 2025. The works were carried out by Wildroof Landscapes (wildroof.co.uk).
GARDEN STRUCTURES
Midway down the terraces, a bespoke greenhouse (built by Morton Garden Buildings, Cumbria) nestles into the slope. A corten steel–clad pond and planting trough provide material contrast, and timber elements are painted to echo details from the house, unifying the garden with its architectural context.
A couple of niches were constructed to place small pots of Auriculas.
The pond is fed by rainwater and has quickly established itself as a thriving ecological asset. After initial algal blooms due to the exposure to the sun, introduction of shade plants, Daphnia and snails has transformed the health of the pond.
Excavated limestone boulders uncovered during terrace construction, were used on one edge of the pond, incorporating a trickling waterfall. Others used to create rockeries on the slopes and resin the very sandy soil.
PLANTING
The planting scheme is guided by a restrained palette of green and white, emphasizing texture, form and seasonal variation.
The planting design responds directly to the steep topography with the concept of ‘hanging gardens’, which will develop over time. This layered approach softens the engineered terraces that were required for such a challenging site. The overall planting strategy supports biodiversity and responds to the site’s varied light conditions and pronounced microclimatic variation.
Philadelphus, bamboo and pyracantha were retained and renovated on the site boundary. These supplement the borrowed landscape from neighbouring gardens.
Along the rear boundary, hornbeams have been planted and trained against a bamboo framework to form a pleached hedge. Over time, this will provide privacy and shelter while maintaining permeability.
Elsewhere, planting is used to define space, filter views and create enclosure where the garden is overlooked. A yew hedge, grown from seedlings collected from the front garden, will provide enclosure to the upper terrace seating area.
Tree selection was prioritised from the outset to establish long-term structure. Structural evergreen planting provides year-round presence and a sense of permanence, while deciduous trees, shrubs and perennials provide seasonal variation.




