Cemetery in Gateshead
This local authority scheme started as a wasteland, which had previously been a quarry, then a landfill site. In just under two years it was transformed into a functioning cemetery with seasonal planting, using a tranquil colour palette of white and purple. The need to cap the contaminated land meant that material had to be imported and spread across the site, and tied into the existing levels. This resulted in the landscape changing from a bowl in profile to a mound. What began as a challenge became an asset. The hilltop gave the chance to create views across the space. We designed new railings and gates to withstand the impact of heavy vehicles on a downhill bend on one edge of the site.
From the entrance, paths lead around the parkland-style cemetery, with open lawns, ornamental and specimen trees and shrubs. To the east of the site we enhanced an existing wooded dene with a stream which flows into a pond on the northwest side of the cemetery.
Browse the Full Gallery
Site Design
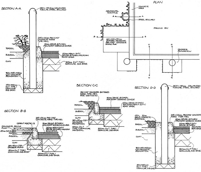
One of the design challenges was to separate mourners and utility vehicles as discreetly as possible, using a combination of layout, circulation and screening with plants. Careful detailing of the hard landscape features was required to ensure that kerb edges etc were robust enough to cope with the circulation and movement of utility vehicles.




